Studio flat to rent in Holmes Park, North Street, RH12
£1,025 per monthLOCATION Holmes Park embodies the true meaning of a central location. A stone's throw away is Horsham town centre, a thriving historic market town with an excellent selection of national and independent retailers including a large John Lewis at Home...
BroadbandKey Features
- Studio Apartment
- Separate Sleeping Area
- High Quality Finish Throughout
- Integrated kitchen appliances
- Unfurnished
- Allocated parking
- Available from 23rd February 2026.
- Council Tax Band A
- EPC rating C.
Property Description
LOCATION Holmes Park embodies the true meaning of a central location. A stone's throw away is Horsham town centre, a thriving historic market town with an excellent selection of national and independent retailers including a large John Lewis at Home and Waitrose store. There are twice weekly award winning local markets in the Carfax in the centre of Horsham for you to stock up on local produce, or head to East Street, or 'Eat Street' as it is known locally, where there is a wide choice of restaurants. You are spoilt for choice when it comes to activities as there is Pavilions leisure centre with it's gym and swimming pool and Holmes Park is directly opposite Horsham Park, whilst next door is The Capitol, with cinema and theatre. There are some beautiful walks and cycle rides in the immediate countryside. Further afield, the stunning South Downs and coast are within easy reach. For those needing to commute, Horsham Station is a one minute stroll away, with a direct line to Gatwick (17 minutes) and London Victoria (52 minutes) and there is easy access to the M23 leading to the M25.THE PROPERTY This second floor studio apartment comprises; Kitchen/ Living area with integrated appliances to include fridge/freezer, dishwasher and washer/dryer. There is then separate bedroom area giving the feel of a one bedroom apartment. Completing the apartment is the modern white suite bathroom with shower attachment. The apartment also benefits from having secure video entry phone system and under floor heating.
OUTSIDE The property benefits from one allocated parking space.
ENTRANCE
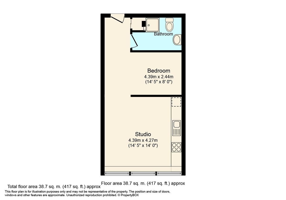
BEDROOM 14' 5" x 8' 0" (4.39m x 2.44m)
KITCHEN/ LIVING AREA 14' 5" x 14' 0" (4.39m x 4.27m)
BEDROOM 14' 5" x 8' 0" (4.39m x 2.44m)
BATHROOM
Location
Floorplan

Energy Performance

Horsham Area Guide
Why move to Horsham?
Horsham is a historic market town that has retained its character while expanding to accommodate more homes and better facilities to cater for approximately 129,000 occupants. Horsham is the perfect blend of old style and...
Read our area guide for HorshamRequest a Valuation
You can start with a quick, estimated property valuation from the comfort of your own home or arrange for one of our experienced team to visit and do a full, no-obligation appraisal.










