Property Description
LOCATIONThis beautiful apartment is set within a private estate, within the Sussex Countryside, yet easily accessible to neighbouring towns and villages. Horsham is nearby and has a direct rail service to London Victoria (in under an hour) and a charming town centre, with a host of restaurants, coffee shops and both major retailers, including John Lewis and plenty of independent shops. The property has a private driveway, leading to the A264, allowing swift access onto the A23/M23 and in turn Gatwick Airport that is less than 10 miles away. With the property being set adjacent to the ancient St Leonard's Forest, there are miles of woodland for walks or cycle rides close at hand, with the popular Dragon pub in Colgate a short walk from the property too.
PROPERTY
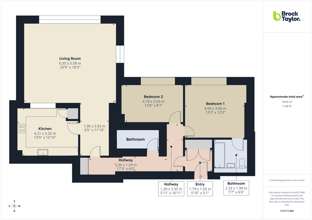
This spacious apartment is set within a substantial Grade II listed Jacobean-style Victorian mansion, built in around 1870. Enjoying a desirable a southerly aspect, the property is flooded with natural light and offers stunning views over the beautifully maintained grounds. The building itself boasts a grand entrance hall with oak-panelled walls and a sweeping staircase, crowned by a striking period Cupola that fills the space with natural light.
The apartment is ideally positioned within the building, featuring full-height, oak framed Jacobean-style windows and attractive views from both bedrooms and the living space. Recently refurbished to a high standard, the property benefits from a newly fitted contemporary kitchen and stylishly updated bathrooms, including an en-suite to the principal bedroom and a modern & family bathroom.
Additional features include hardwood flooring throughout, a generous living room, and two well-proportioned bedrooms, combining period charm with modern comfort.
OUTSIDE
Roffey Park is a delightful private estate, situated less than 4 miles from Horsham town centre. The mansion is set at the end of a long, sweeping driveway that opens out onto a large gravelled area to the front of the building, with far-reaching views towards Rusper and beyond. Grass areas extend from the mansion house and lead to a Victorian walled garden and woodland area, which has been opened up and now offers beautiful walks for the enjoyment of the residents. Two separate parking areas screened from the main house have been allocated for full use of the residents. In total, there are over 19 acres of professionally maintained grounds that surround this historic country house. A cellar is also available to be used as communal storage space.
ADDITIONAL INFORMATION
Tenure: Leasehold/Share of Freehold
Lease Term: 125 Years From 17 March 1995
Annual Ground Rent: n/a
Annual Service Charge: £tbc (January to December 2026)
Service Charge Review Period: Annually
Annual Reserve Fund: £tbc (January to December 2026)
Council Tax Band: F
AGENTS NOTE
We strongly advise any intending purchaser to verify the above with their legal representative prior to committing to a purchase. The above information has been supplied to us by our clients/managing agents in good faith, but we have not necessarily had sight of any formal documentation relating to the above.
What else you need to know?
Leasehold
- Ground rent review period years: 1
- Lease expiry date: 2120-03-16
- Service charge notes: Tbc
- Service charge: £3,939 per year
Utility supply, rights and restrictions
- Utility supply
- Broadband: FTTP
- Electricity supply: Mains supply
- Heating supply: Central
- Sewerage: Mains supply
- Water supply: Mains supply
- Other information
- Accessibility: Not suitable for wheelchair users
Location
Floorplan

1
Energy Performance

Horsham Area Guide
Why move to Horsham?
Horsham is a historic market town that has retained its character while expanding to accommodate more homes and better facilities to cater for approximately 129,000 occupants. Horsham is the perfect blend of old style and...
Read our area guide for HorshamRequest a Valuation
You can start with a quick, estimated property valuation from the comfort of your own home or arrange for one of our experienced team to visit and do a full, no-obligation appraisal.






















