Key Features
- FOUR 1ST FLOOR DOUBLE BEDROOMS
- GROUND FLOOR BEDROOM WITH WET ROOM
- ENSUITE TO BEDROOM 1
- LARGE FITTED KITCHEN/DINER
- GENEROUS SECLUDED GARDEN
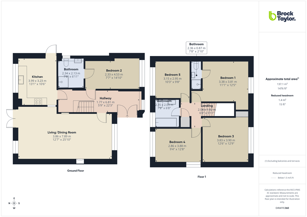
- 26 (7.92M) X 14'7 (4.44M) LIVING ROOM
- DRIVEWAY PARKING
- POTENTIAL FOR EXTENSION (STPP)
- EASY WALK TO STATION
- NO ONWARD CHAIN
Property Description
LOCATIONThis spacious detached family home is situated in an enviable location, just a short walk from a Tesco Express convenience store and Littlehaven mainline station, which provides a direct service to London Victoria (55 minutes). The property is also conveniently positioned, with a short walk to St Robert Southwell Catholic Primary School, and within easy access of both Leechpool & Littlehaven Schools, in addition to Bohunt School. The property also offers good access to J11 of the M23, with easy access to Gatwick, London & beyond, with Horsham's thriving historic market town a short drive or bus ride away, that offers a wide selection of independent retailers and large High Street brands, that include John Lewis. There are also twice weekly local markets in the Carfax, an Everyman Cinema, The Pavilion's Pool & Leisure Centre and The Capitol Theatre. The town also offers a wide selection of bars, restaurants and coffee shops.
PROPERTY
The property offers spacious accommodation, arranged across two floors, with a generous entrance hall, that provides access to all downstairs rooms, including a ground-floor guest bedroom, ideal for an elderly relative or teenager, with an ensuite shower room. In addition, there is a, double aspect 25'10 x 12'7 living/dining room and a modern fitted kitchen/diner, with ample room for a table and integrated appliances. Moving upstairs, you have a stylish family bathroom and 4 double bedrooms, with the 12'5 x 11'1 main bedroom boasting an ensuite and fully fitted with wardrobes.
OUTSIDE
To the front of the property you have a driveway providing parking off street parking for a number of cars. On both sides of the property you have a gated access giving you access to the large, private rear garden creating a perfect space to enjoy the evening sun. The garden is mostly laid to lawn with a large patio area which is an ideal space for garden furniture.
ADDITIONAL INFORMATION
Tenure: Freehold
Council Tax Band: F
What else you need to know?
Leasehold
- Service charge notes: £0
Utility supply, rights and restrictions
- Utility supply
- Broadband: FTTP
- Electricity supply: Mains supply
- Heating supply: Double glazing, gas
- Sewerage: Mains supply
- Water supply: Mains supply
- Other information
- Property age bracket: 1950 to 1970
Virtual Tour
Location
Floorplan

1
Energy Performance

Horsham Area Guide
Why move to Horsham?
Horsham is a historic market town that has retained its character while expanding to accommodate more homes and better facilities to cater for approximately 129,000 occupants. Horsham is the perfect blend of old style and...
Read our area guide for HorshamRequest a Valuation
You can start with a quick, estimated property valuation from the comfort of your own home or arrange for one of our experienced team to visit and do a full, no-obligation appraisal.


























