Key Features
- THREE BEDROOM VICTORIAN HOME
- TWO SPACIOUS DOUBLE BEDROOMS
- ONE GENEROUS SINGLE BEDROOM
- SEPARATE KITCHEN
- DOWNSTAIRS TOILET
- CHAIN FREE
- LARGE REAR GARDEN
- POTENTIAL TO EXTEND (STPP)
- OFF STREET PARKING FOR ONE CAR
- GARAGE FOR STORAGE OR PARKING
Property Description
LOCATIONSituated on the ever-popular Crawley Road, this property enjoys a convenient position offering easy access to Horsham town centre, local shops and well regarded schools. The area is ideal for commuters, with strong road links to the A264, A24 and A23, plus a mainline station nearby providing direct routes to London and the south coast. Green spaces and countryside walks are also within easy reach, giving a balance of town and outdoor living. The location appeals to families and professionals alike thanks to its accessibility, amenities and established residential feel.
PROPERTY
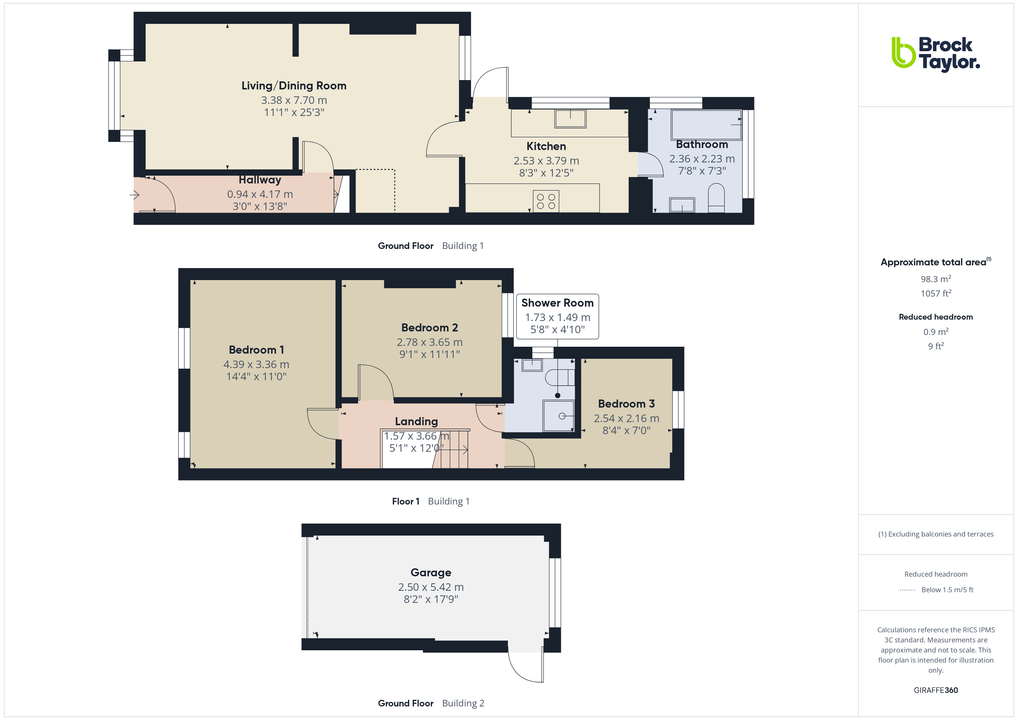
This charming three bedroom Victorian home offers generous proportions, character and excellent potential to extend (subject to the usual consents). The property is well suited to buyers seeking space and the opportunity to add value.
Inside, the home features a spacious layout with a separate kitchen, providing good storage and workspace, and clear separation from the living areas. A downstairs bathroom adds everyday convenience. The living and dining spaces offer good natural light and a welcoming feel typical of period homes.
Upstairs, the property comprises two large double bedrooms and a generous single bedroom, making it ideal for families, home working or guest space. The first floor also benefits from a shower room with WC, providing practical facilities for busy households.
Overall, this is a characterful home with high ceilings and a traditional layout, offering scope for modernisation or extension to the rear or loft (STPP). It presents a fantastic opportunity for buyers wanting a Victorian property they can tailor to their needs.
OUTSIDE & PARKING
The property benefits from a large rear garden, offering excellent outdoor space for families, entertaining or future extension potential. The garden provides plenty of room for landscaping, play areas or a garden office if desired. To the front, there is off-street parking for one vehicle, a valuable feature for this style of home. In addition, the property includes a garage, ideal for storage, a workshop or secure parking. The combination of garden size, parking and a garage makes this home particularly appealing compared to many similar period properties.
What else you need to know?
Utility supply, rights and restrictions
- Utility supply
- Broadband: FTTP
- Electricity supply: Mains supply
- Heating supply: Gas central
- Sewerage: Mains supply
- Water supply: Mains supply
- Other information
- Accessibility: Level access
Virtual Tour
Location
Floorplan

1
Energy Performance

Horsham Area Guide
Why move to Horsham?
Horsham is a historic market town that has retained its character while expanding to accommodate more homes and better facilities to cater for approximately 129,000 occupants. Horsham is the perfect blend of old style and...
Read our area guide for HorshamRequest a Valuation
You can start with a quick, estimated property valuation from the comfort of your own home or arrange for one of our experienced team to visit and do a full, no-obligation appraisal.


























